HAL石神井公園(Nearly ZEH) の過去掲載物件情報 現況の確認はお気軽にお問い合わせください。
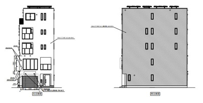
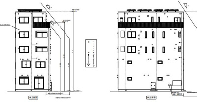
駅から徒歩6分の駅近物件で、快適に通勤や通学をすることができます。外装もおしゃれで快適な生活をおくることができるマンションです。素敵な外観タイル張り仕上げの物件。練馬区にお引越しをご検討中ですか?石神井公園近くは通学・通勤もしやすくお薦めですよ。Eメールでのお問い合わせはお気軽にshop_oizumigakuen@uniho.comへ。
物件情報
HAL石神井公園(Nearly ZEH) の物件概要
【マンション】| 所在地 | 東京都練馬区石神井町3丁目30-20 | ||
|---|---|---|---|
| 交通 | |||
| 賃料 | - | 管理費・共益費 | - |
| 面積 | - | 築年月(築年数) | 2026年 3月 ( 予定 ) |
| 種別/構造 | マンション / 鉄骨造 | 階建 | 5階建 |
| 備考 | こちらはエレベーター付きの物件です。造りとデザインに関して、自信をもって情報を提供できるマンションです。駅から徒歩6分の立地で電車での通勤や通学に便利な物件です。おしゃれなあなたには、外観タイル張りのマンションがおすすめです。幸先の良い新生活を練馬区で迎えましょう。お部屋に関することなら03-5947-4800やshop_oizumigakuen@uniho.comから、ユニホー大泉学園店までご連絡ください。 | ||
| 取扱会社 |
|
||
※地図上に表示される物件の位置は付近住所に所在することを表すものであり、実際の物件所在地とは異なる場合がございます。





